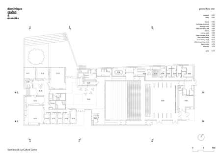
The environment in which this cultural centre emerged is both magnificent and complex. The building enjoys splendid views of Saint-Jean-de-Luz Bay, only 500 metres away. The structure is not considered a single unit, but rather a series of fragments in which the different functions of the architectural programme are based. This spatial principle reflects the site's dimensions. It made it possible to freely play around with the sizes of the building's different parts and to reach the right balance.
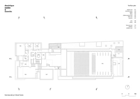
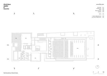
An atrium stretches up, like a self-evident feature, between two parts: to its east, a vast theatre; to its west, three levels that contain superimposed sections – a music school, theatre rooms and dance studios. This triple height gives the place a noble aspect. The atrium stands out as the centre's beating heart that unites all the functions of the architectural programme within a collective structure and a site for sharing – a centre for togetherness and coexistence.
Natural light floods the interior. The glazed portions are invitations to discover the different spaces. This place is designed to create bonds. And it offers beautiful views of its garden. Indeed, this garden embellishes the cultural centre, showcasing it wonderfully. A small open-air theatre has been made in this outdoor space and two large rooms for collective practice lead outside generously. The layout, at once simple and elaborate, has the advantage of making the whole place, organised in this particular way, pleasantly compact.
The centre combines practicality with poetic expression and the building's density ensures wonderful fluidity inside: to get around the interior, you cover short distances in hallways bathed in natural light. With its arrangement of rooms, put together in an abundance of light, this centre invites you to journey through it and underlines the different aspects of its rich architectural programme.








.jpg?w=450&q=75&dpl=dpl_6NKhQbYoNKZ4YGsW1tKTDHjTc7uH)

















.jpg?w=450&q=75&dpl=dpl_6NKhQbYoNKZ4YGsW1tKTDHjTc7uH)
.jpg?w=450&q=75&dpl=dpl_6NKhQbYoNKZ4YGsW1tKTDHjTc7uH)

.jpg?w=450&q=75&dpl=dpl_6NKhQbYoNKZ4YGsW1tKTDHjTc7uH)



.jpg?w=450&q=75&dpl=dpl_6NKhQbYoNKZ4YGsW1tKTDHjTc7uH)







