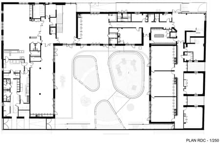
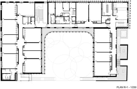
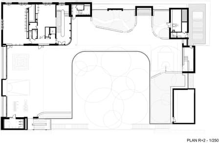
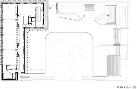
The Les Fabriques school complex, designed by BGA in the heart of Marseille's Littorale urban development zone, brings together a nursery school and an elementary school, each with its own reception areas, circulation spaces, and generously lit and ventilated classrooms. On a highly constrained plot, the agency developed a compact, vertical project, freeing the center of the site for the preschool playground, while the elementary school playgrounds and educational gardens unfold in tiers up to the rooftop. At the request of the City, a rooftop sports facility — half a basketball court, an athletics track, and a catamaran sail-like mesh — completes the program and becomes a true gathering space for the neighborhood.
The school is conceived as a "landscape building," an urban cove combining stone, vegetation, and light. A mineral base follows the topography, while massive volumes interlock in an almost cyclopean composition. Between them, interstices welcome vegetation and multiple outdoor spaces: open-air classrooms, an outdoor theater, and gardens where birds come to nest. This morphology responds as much to educational needs as to the climatic conditions of Marseille, marked by mistral winds, intense sunlight, and recurring heatwaves, including that of summer 2025. In this fragile part of the northern districts, the school serves as both a landmark and a refuge — a protective place ensuring calm, legible circulation, and safety.
Solid stone plays a decisive role: sourced from the Beaulieu quarry, it provides thermal inertia and long-term durability. Its overhangs filter sunlight and soften solar gain, creating a gentle and stable atmosphere in classrooms and corridors. As project manager Arnaud Ladauge notes: "The entire envelope is made of solid stone… blocks between 20 and 45 centimeters thick. It was moving to think that they would remain the building's permanent skin throughout its lifetime."
This attention to sensory experience is reflected in details such as the continuous line of coat hooks inspired by Osvaldo Cavandoli — a playful Ariadne's thread guiding children through the building. As partner Jean-Pierre Lévêque explains: "It seems obvious to us that the pleasure we take in designing should be reflected in the way children and educational teams inhabit the building."
The project is also the result of a trusting partnership with Euroméditerranée and the City of Marseille, who supported the integration of new requests, such as the rooftop sports facility, and encouraged the agency's experimentation with innovative construction methods. As Julien Gonin recalls: "We worked hand in hand with Euromed, particularly with Cécile Elbaz."
The City also highlights the building's shared use: the school can welcome associations and residents outside school hours and participate in the "À nous les toits" initiative. With its compact design, hybrid stone-and-concrete structural system, climatic resilience, and strong local grounding, Les Fabriques is far more than a functional school: it becomes a protective, open landscape where education, climate, and poetry converge to offer children a learning environment perfectly attuned to Marseille — a dense, sun-baked city.





































