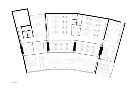
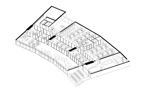
The headquarters of Giraffas network occupies 500m2 of the boxed area of the National Stadium of Brasilia, the Mane Garrincha. The office was compartmentalized by metal dividers that we designed using a 110cm module.
Its design could be adapted to both the curves of the original structure and the irregular walls of the space. While the metal parts of the divider were painted with the brand's orange color, its glasses were left transparent or translucent, depending on the desired privacy. The same module was used in the creation of tall cabinets that mix metalwork and carpentry.
The main guideline was to maximize the view of the football field of the stadium, through all spaces where it was possible. We created an event area, meeting rooms, workstations area, and reception. The entire original structure of the stadium was left exposed, as well as the electrical and air conditioning installations.
Expand full description
Request Press Kit for Print
BLOCO Arquitetos
Brasília, Brazil

© Júlia Tótoli

© Júlia Tótoli

© Júlia Tótoli

© Júlia Tótoli

© Júlia Tótoli

© Júlia Tótoli

© Júlia Tótoli

© Júlia Tótoli

© Júlia Tótoli

© Júlia Tótoli

© Júlia Tótoli

© Júlia Tótoli

© Júlia Tótoli

© Júlia Tótoli

© Júlia Tótoli

© Júlia Tótoli

© Júlia Tótoli

© Júlia Tótoli

© Courtesy of BLOCO Arquitetos

© Courtesy of BLOCO Arquitetos

© Courtesy of BLOCO Arquitetos