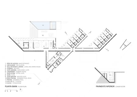
FG House was designed for a condominium about an hour and a half from São Paulo downtown for a couple and their children and arises from the fragmentation of the program through four trapezoidal volumes of pigmented concrete, in a harmonious arrangement on the 12,152 square meter plot and joined by the same linear axis.
The articulation between the different volumes sectorizes the residency program in such a way that the three frontal volumes protect the social and intimate areas, while the volume of the back portion concentrates the service spaces.
Taking advantage of the slope of the natural profile of the land in the northern portion, in the lower volume we find the TV and sauna room, which fits the program and thus disguises it without losing the perception of a single-storey house. Set back in relation to the upper floor, it receives closings in floor-to-ceiling glass panels, which, shaded, seem to disappear, creating the sensation of the main volume floating. The rest of the program is at the highest level.
Outside, grassy steps lead to access to the upper level, and at the side, the landscaping developed in partnership with Paisagismo d ’Orey Brasil receives philodendron shrubs. On the main level, the deck and infinity pool are finished in basalt. Like natural umbrellas, two trees provide shade for the sun loungers.
In this residence, the visual and physical limits between interior and exterior are diluted through design integration strategies. The same material as the deck (basalt) and lining of the balcony (modular in slatted wood) are used in the interior, and the living, dining and gourmet areas become a balcony when their frames are fully open to the pool and garden.
In the social volume, from a material point of view, the palette in natural tones brings comfort and well-being, where the reddish- colored pigmented concrete gables, wood in the ceiling and panels, and basalt on the floor and fireplace stand out.
In the furniture, the mixture of pieces (existing ones from the family, new ones from Brazilian designers, pieces from Minas Gerais, and solid wood) prevails, seeking the simplicity stripped of a country house. The fabrics of the armchairs and rugs follow a color palette in harmony with the architectural surfaces. It is worth mentioning that part of the furniture is integrated with the architecture, such as the fireplace (in basalt and soapstone) and the dining room sideboard (in marble).
The gourmet area serves as a support for the dining room and pool, and can be integrated individually into each of the spaces. The sliding wooden panels allow to be opened to the dining room or completely closed and only opening the glass frames to the outside. To ensure ventilation and natural lighting, cobogós – Brazilian hollow concrete elements – were used to close the side gable.
On the right side of the social volume, behind the living room, we have access to a small private TV room and master suite. On the opposite side, a staircase leading to the lower level is bathed in zenith lighting. In the bedroom, on the workbench, a linear tear in the concrete gable points strategically aimed at the garden.
With a special design by Bernardes Arquitetura, eight vertical wooden brises-soleil positioned transversely on the balcony of the rooms shade the interior while directing the view to the horizon. Attached to its structure, benches covered with the same wood and supported by a single pillar play the role of railing.
In the second volume, to the southwest, are the kitchen, laundry and three service suites. In the intimate portion, there are eight suites, two of which are extra suites, in addition to two intimate rooms, positioned in the two blocks of the southeastern portion.
In this residence, the linearity of the corridor is transformed into a gallery that crosses the succession of volumes, with a set of tears strategically arranged, sometimes in the vertical planes (walls), sometimes horizontal (slab), and which frame the external view. On the other hand, they allow light to fill the space, in a play of light and dark.
















