Benthem Crouwel Architects transformed an empty, neglected office building in Amsterdam South into a high quality, inspiring and sustainable office where all employees of the Goede Doelen Loterijen (Dutch Charity Lotteries) can work together. The building received the BREEAM rating ‘Outstanding’- making it the most sustainable renovated property in the Netherlands.
An office like a home
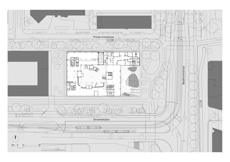
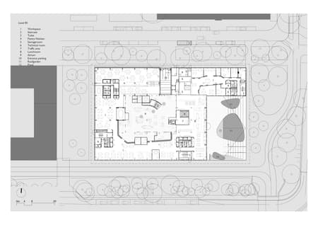
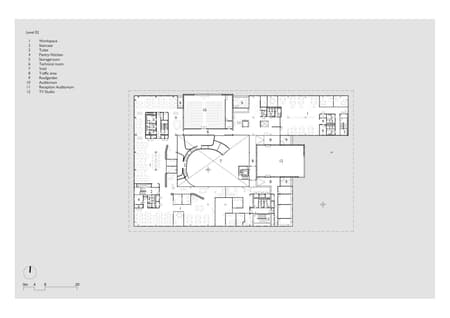
The 600 employees of the Charity Lotteries had been scattered among different locations for years, and the client wanted to give them a collective home. This home needed to be a highly sustainable building, an important condition for this company that has sustainability as one of its core values. The social ambitions and idealism of the Charity Lotteries are now made visible in their office building – a transparent, accessible building that serves the employees as well as the neighborhood, and is a welcome addition to the nearby business district Amsterdam Zuidas. Besides offices, the building houses a public restaurant, and auditorium and a tv studio.
Together under one roof
The Charity Lotteries employees were involved in the design from the very beginning. Everyone was invited to share their thoughts, and through this unique process of co-creation a building emerged that fits the unique atmosphere and work practice of this organization like a glove.
It was the employees’ wish to bring the green from the park at their old locations to the new office. To fulfill this wish a roof was created that is green in every possible way.
Slender, tree-shaped columns – three large ones and three smaller ones – support the roof. In this roof 6.800 leaves made of polished aluminum unfurl, creating a beautiful dappled effect on the walls and floors, reminiscent of an actual walk in the forest. Colors, light intensity and atmosphere change depending on where and when one walks through the building. The new roof acts like a grand gesture towards the surrounding area and is visible not only from the high-rises of the nearby business district but also (on eye level) from the houses in the neighborhood.
Pioneering in sustainability
By choosing to renovate and expand an existing building instead of designing a new one, and by using the newest and most cutting edge sustainability techniques, the new housing for the Charity Lotteries became not just an energy neutral, but an energy positive building. In the spectacular roof, 949 solar panels provide energy. The roof also collects rainwater that is subsequently used to irrigate the roof gardens, and to supply the sprinkler and flushing systems with water. Materials from the demolished parts of the old building have been reused, and all newly used materials have been tested for sustainability and can be repurposed in the future if necessary. All these measures have rewarded the building with the BREEAM rating ‘Outstanding’, making it the most sustainable renovated building in the Netherlands. The final score was 92,61%, with 85% being the minimal score to receive this rating.


















