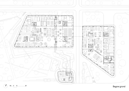
A new type of office. Cedar consists of two five storey volumes connected by a glass footbridge that ensures a fast link between all levels. The building, the interior and the surrounding park are designed as an integral, welcoming whole, establishing a new typology for financial institutions: instead of emphasizing security and power, the architecture focuses on transparency, connectivity and collaboration. The highly sustainable, human centric design is a notable example of ING’s purpose to empower people in a building that opens itself up to society. The design received the sustainability label BREEAM-NL Outstanding.
An office in the green. Cedar is located in Amsterdam Zuidoost at Cumulus Park, an innovation district initiated by ING and now a joint effort of ING and the Municipality of Amsterdam, the Amsterdam University of Applied Sciences (AUAS) and the Amsterdam Community College (ROC Amsterdam). It is a dynamic environment for creative collaborations between entrepreneurs, scientists, students, (mid) corporates, researchers and innovators. Cedar has a unique location on Cumulus Park. Benthem Crouwel Architects’ decision to move the building all the way to the back of the plot created a large green zone in front of the building. This urban garden, designed by Karres en Brands landscape architects, becomes the heart of the innovation district - connecting buildings, users, residents and visitors and upgrading the public space of this area where green is scarce.
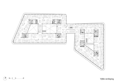
Designed to connect. “Both the urban planning and architecture of Cedar evolve around connectivity,” says Pascal Cornips, architect and partner at Benthem Crouwel Architects. “Cedar links people, the neighborhood and society together in a creative and inspiring way. The transparency of the building’s facades perfectly embodies ING’s new philosophy with its focus on collaboration, empowerment and openness, but also ensures employees are always in touch with the green world outside.” The smooth, curved facades and floor to ceiling windows give Cedar a friendly and approachable front. The rounded canopies that wrap around the facade visually connect the two volumes and give the building a human scale, while simultaneously serving as sunscreens that protect the workspaces from the heat of the sun. Inside, bright and airy atriums are the central heart of the office and allow daylight to flood the building. The wide dimensions and the wide floor span of the low-rise building guarantee ample square meters on every floor and large open spaces that are perfect for an agile work environment. The way the floor plan layout is organized around and through the atriums allows for efficient and fast routing. The open floor plans give the employees optimal flexibility and also make alternative use in the future possible, if desired.
An empowering interior. HofmanDujardin designed both the full interior and the dynamic, floating platforms and staircases that criss-cross the two spacious atriums at the building’s heart. “The interior of Cedar is all about empowerment and well-being. You feel the freedom when you walk in. The platforms connect places and people and bring the vibrancy up to the highest levels of the building”, explain Barbara Dujardin and Michiel Hofman, founding partners of HofmanDujardin. On the lively ground floors a world of possibilities opens: you can visit the coffee bar, food court or event halls or take a seat in one of the various informal meeting places. Customers can also visit the in-house bank office. The layered range of environments matches the variety of individual wishes of a big bank’s staff. All places have a human scale and carry their own qualities and atmosphere, while everything is harmonious and connected. Because of its all-round orientation the building presents itself as an accessible volume that matches its surroundings with the low-rise buildings and level differences in urban landscape. A bike route cuts directly through the building, further emphasizing how this building is not an obstacle to move around, but an integral part of the urban space, improving connectivity.
Atrium and platforms. The expressive wooden platforms symbolise the 21st century bank’s identity as a digital platform. They form grounded spaces and create physical and visual connections that naturally stimulate ING’s employees to collaborate. Visible from everywhere around the atriums, they also provide orientation points and encourage people to take the stairs. The platforms are fast becoming favorite places to hold spontaneous meetings and small gatherings. Flexible and moveable metal frames allow them to act as temporary ‘rooms’ for anything from business meetings to interior gardens, art exhibitions or a break-time birthday celebration.
Orange Workplace. All office floors are accessed from the platforms through warm textured entrance zones, each with their unique furnishing to create recognizable diversity. There is one single floor layout concept throughout the building with a well-balanced mix of spaces. This agile environment gives full freedom to choose where and how to work and meet. In between the areas with team tables and scrum boards, there are colorful clusters of meeting rooms in different sizes, accommodating anything from private calls to group meetings. Furthermore, each level has a silent area for concentration, with a reading table and a series of private booths. Throughout the building excellent acoustics ensure a sense of well-being and make it easy to focus. Lots of plants, big trees and 300 works from ING’s large collection of art add another layer to the experience of the interior. All is finished with a balanced palette of warm tones and natural materials, while a touch of orange hints at ING’s strong visual identity. This makes the generous building not just an empowering and healthy place to work, it also gives this leading bank a new face.







































