ParkLife is a high-performing, beautifully designed, community-focused apartment building located in Brunswick, in Melbourne's inner north. Designed to build community and prioritize social, economic and environmental sustainability, ParkLife has achieved an incredible 9-star energy rating.
Following on from the internationally recognized, multi-award-winning Terrace House, ParkLife continues to revolutionize high-density urban living. Taking the mantle again as both Architect and Developer, Austin Maynard Architects has finessed the hard lessons learned, to deliver 37 refined, all-electric, fossil fuel-free, super-sustainable homes.
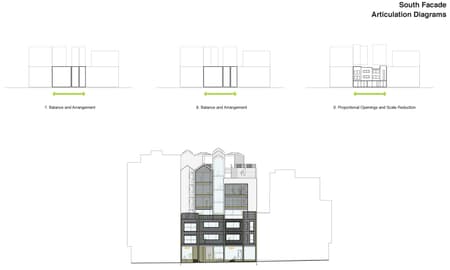
Set within Australia's first carbon-neutral residential precinct, ParkLife has a distinctive mountainous roofline and a unique rooftop amphitheater, as well as a variety of social/communal areas, diverse in scale, location and character. Homes comprise of 14 one-bedroom, 19 two-bedroom, 2 three-bedroom and 2 Teilhaus apartments, each designed to extol space, efficiency, functionality and flexibility. Five of the apartments are designated social housing, through Housing Choices Australia.
In contrast to the big urban moments, there is a domestic scale playfulness on the skyline. Instead of a large open, windswept terrace, ParkLife provides a series of spaces varying in size, function, and character.
Designed in collaboration with the Landscape Architects Openwork, areas include a productive garden with fruit trees and a real grass lawn for picnics, a covered deck, big enough for large get-togethers (with an electric barbecue) as well as practical facilities including a toilet, laundry and drying area. And then there is the amphitheater, perfect for social gatherings, special events, or simply to sit and watch the sun rise or set in a vast expanse of open sky.






































