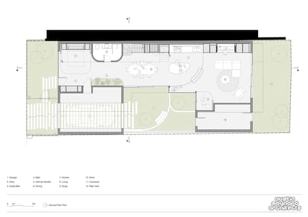
Lang 靚 is a new, double-storey house in South Yarra that reflects the owner's vision for “a wellness-enhancing home that is architectural and inspirational.” The result of exploring “a different sort of mindset,” the design deliberately avoids hallways and corridors and instead maximizes the potential for open space, natural light, and greenery on a relatively small inner-city-sized block.
Massed on the western side of the site, the house steps down to the east to protect the neighbor’s light and garden. This generated much of the form, concentrating the height against the adjoining wall on boundary. A slight gradient on the site, sloping from back to front, also leant itself to an internal level change that defines the edge of the living area and becomes a perfect seat in the kitchen and garden.
Externally, Lang is deliberately tough and resilient, befitting its location just off Punt Road. Clad in durable, anti-graffiti, heat-resistant equine, the form is rectilinear grey boxes with sharp edges. By contrast, the interior space is softer, with natural timber and tonal materials, lush foliage, and gentle curves. Arranged around three distinct garden zones with large openings, the connection between internal and external spaces are interwoven, providing the inhabitants (a family of four) with an ‘airy calmness’ to pursue the things they love - reading, cooking, socializing, and kicking a ball in the backyard.
The open living space is bright and voluminous, with the kitchen, dining, and living room expanding the home’s full length while the width incorporates an internal courtyard garden. A soaring and sculptural timber ‘tree-trunk’ houses the bathrooms above and below, while the entry features a pull-down Murphy bed, concealed storage, and privacy curtains to pivot as a guest bedroom.
The garage is an extension of the ground floor, with large openings at each end and a budget allocated to the ground material. Rather than a standard slab, concrete sleepers create a flow to extend the courtyard and entertaining area through to the street.
Above the kitchen, a white perforated steel section of stairs continues the transparency of the void, allowing for a further increase in air circulation and volume, uncommon for a block of this size. Upstairs, there is a dedicated laundry and outdoor drying zone (besides all the assembled services), two bedrooms and a bathroom, and a main bedroom with a walk-in robe and ensuite. A multipurpose rumpus room occupies the area in between, serving as a playroom for the owner’s two young children, with future potential as a study, teenage hangout, or parents’ retreat.
Lang 靚 serves in direct response to the owners individual and specific brief, to design an efficient, highly pragmatic, multifunctional family home that shows uniqueness and creativity - to make “something different.” “Everything is very specific to our preference. We really knew exactly what we did and did not want. To another person’s eyes, this might not be the ideal, but for us, the functionality and the aesthetic are exactly what we wanted.”


































