Clarke is the renovation and extension of a single-storey weatherboard cottage in Northcote, once void of light, definition, separation, and all hope of personal space.
Drawn to deliberative design, simplicity, and functionality, inspired by their year living in Japan, a family of four (work-from-home professionals and their two teenage daughters), asked for more considered and purposeful space. "Something different." Modern but not stark or boxy, bright and open but also cosy and comfortable, areas to come together and entertain, and private spaces suited to each individual.
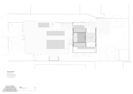
In realising all aspects of the brief and embedding the solutions into the language of the building, the extension became an unusual stepping and overlapping shape. To unify, a batten screen is set over, providing shade and privacy and bringing together new and old in a simple meeting of forms.
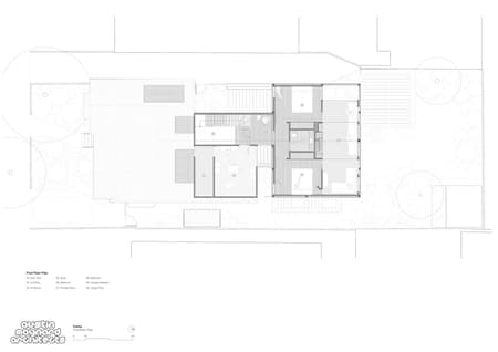
The owner's brief detailed two major objectives - functionality and space to harmoniously co-exist. Alone Together was the prevailing theme. They asked for intimate retreats and areas spacious enough to accommodate large family gatherings. The indoors and outdoors would seamlessly merge. They wanted a highly practical and socially active living/kitchen/dining, with a laundry, a pantry, a dedicated home office, and a second study/ guest bedroom. With recent studies showing around fifty percent of 18 to 29-year-olds still living at home, they hoped to provide their teenagers with their own 'apartment' - or at least the feeling of one.
The old house presented great character and was, in general, a good state, requiring only necessary work to thermally and structurally improve the fabric (re-stumping, repainting, re-plastering, new flooring, heating, and electrical). The bathroom and ensuite had already been upgraded, and a redo was not required.
The alteration and addition begin with the configuration of a new side entry, to bypass private space and reorient access into the centre of the house. The gate opens into the first of three pocket garden/light wells, inviting air flow and views of greenery into the house, here, through the windows of the laundry and the home office on each side.
Off the entry, a perforated steel staircase leads directly up to the 'apartment', comprising two bedrooms, a central bathroom 'box', a secret pink craft room, and a study/TV/retreat, with a generous hammock utilising the high ceiling.
To define the original part of the house with respect to the addition, the external materiality of painted weatherboards is continued internally. Not typically used as an interior wall finish, its application draws the exterior inside, creating visual and spatial separation between the old and newly built, and confusing the perception of inside and out. Bluestone paving is used as internal flooring inside the entry to further reinforce the intent.
In strategically avoiding the expansive open-plan living from feeling as the owners feared, "too cavenous" the lounge room extends off the main entertaining zone. Providing just the right amount of space, the form sits slightly raised and protrudes, like a pavilion, sitting within and fully opening up to the garden.













































