The project is set in Vilamoura, Algarve, near the coastline and facing a wide-open golf course. Casa Colinas addresses one of architecture’s recurring challenges: designing meaningful domestic space within a context shaped and constrained by a tightly-packed plot-based development.
Starting from the maximum allowable volume, the design strategy relies on subtraction. Patios and voids are carved from the mass to create a distinct spatial atmosphere, bringing light and greenery into the heart of the house.
In summary, a strategy that states a strong exterior outline transferred to a free plan on the inside, which facilitates a fluid and flexible occupation of each space of the house - a “container of life”.
From the street, the architecture appears solid and restrained, defined by exposed concrete surfaces that shelter the domestic realm. As the sequence unfolds, light cuts through the volumes, revealing interior gardens framed by raw concrete and wood elements.
Gradually, the house opens toward the landscape, establishing a dialogue between grounded mass and openness while dissolving the boundary between inside and outside.
Facing north, a large rectangular volume is removed from the initial geometry, creating generous openings across the two main floors. Here, a lush green garden emerges, forming a crevice that is equally significant for interior living—by allowing soft, diffuse natural light and serving as a scenic backdrop to daily life—and for the exterior, where it functions as a vegetation buffer that enhances the perception of distance from the plot boundaries.
The south-sunset facing façade, oriented towards the vast golf course fields, opens the house to the landscape. Large glazed openings allow abundant light to enter while blurring the boundary between interior and exterior, transforming the house into an extension of the garden and vice-versa.
Spatially, the house is organized across three floors. The ground floor establishes the entrance through a central hallway that functions as the main distribution space, connecting the social areas—kitchen, dining and living room—to the covered outdoor lounge and swimming pool. A guest suite is also located on this level, benefiting from the natural light of the patio, which simultaneously illuminates and frames the central hallway.
The upper floor accommodates the more intimate areas of the house-hold, which corresponds to the three main bedrooms. All these three spaces take advantage of the south-facing orientation and expansive golf course views, ensuring privacy and a calm, intimate atmosphere. In front of each bedroom, a continuous garden strip creates a foreground layer that reinforces the symbiosis between architecture and landscape. From this level, the rooftop is accessed via an exterior staircase made of metal mesh, allowing light to pass through without obstructing the spaces below.
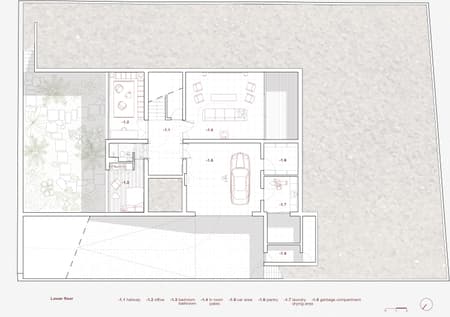
On the lower level, the abundant presence of natural light and garden areas challenges the conventional notion of a basement. Complementary spaces—including a TV room, an additional en-suite bedroom and a flexible office space that can also function as a gym, library or meditation room—support a contemporary family lifestyle.
Materiality plays a key role in unifying the project’s premises. Externally, the house is clad in exposed concrete, defined by a wood-plank formwork pattern that reinforces the volume’s solidity. Inside, wood and stone become the dominant material, extending across floors, ceilings and special features to create a warmer, more natural and comfortable atmosphere.
Outdoors, wooden decks, wooden shutters and the stone-covered swimming pool establish a cohesive material palette, anchoring the house to the plot and reinforcing its harmonious integration with the surrounding landscape. The use of all these natural materials, in articulation with the roughness of the bare concrete and dark surfaces, provides the house with an intemporal character.
Casa Colinas balances social and private spaces through a timeless material palette, where concrete, wood and vegetation work together to shape a grounded yet open living experience.
















































