Le49 II is a residence situated on a corner lot within a serene residential neighborhood in the heart of Tokyo. The client purchased a plot of land close to their daughter’s elementary school with the vision of building a residence that would allow for luxurious and comfortable family living while also providing an environment conducive to remote work.
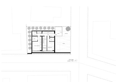
Charcoal gray Galvalume steel walls, gray natural-granite retaining walls, and resin wood louvers endow the exterior with a sense of subtle refinement. The husband’s study and the wife’s studio are located in the basement, where they can immerse themselves in their work and interests undisturbed. The master bedroom and child’s room, along with the washroom and bath areas, are situated close together on the first floor.
On the second floor is the family room, a single uninterrupted space for the father, mother, and daughter to gather and spend quality time. Here, the rafters of the hipped and gabled roof are a defining feature; light streams in through a pentagonal window on the south face, generating a dynamic interplay of light and shadow on their striated pattern. The girder-side wall encompasses the living room closet space, kitchen, bathroom, and elevator. Meanwhile, cove lighting set behind the upper wind-resistant beams bathes the ceiling in gentle illumination, transforming the ambience of the home in the evening.
The kitchen and dining area feature a lower ceiling height, creating a pleasant contrast with the lofty proportions of the living area. Le49 II provides an ideal space for allowing each family member to express their individuality while fostering a sense of family unity. The home gives true expression to the concept of compact luxury.






















