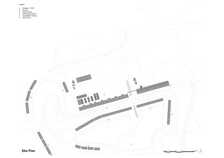
Completed in 2024 as a strategic addition to the Pertamina Mandalika International Circuit, the Pertamina MotoGP Experience Gallery introduces a pavilion typology that blends a speed-inspired design and modular construction, creating a structure that connects with the spirit of the circuit.
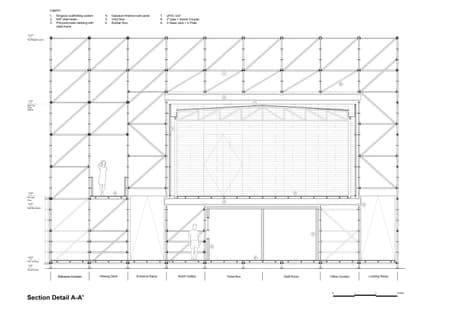
Commissioned as a quick to assemble structure, the gallery was designed and built in four months and intended to remain in place for several years. Its scaffolding-based system serves not simply as a technical solution but as an architectural language. The result is a 1400-square-metre, two-storey framework that acts as cultural infrastructure and as a statement about the future of adaptable architecture. Its raw aesthetic resonates with the industrial character of the circuit’s grandstands while enabling rapid assembly, future modification, and low-impact maintenance.
This architectural morphology— between pavilion and infrastructure—embraces reuse and adaptability, offering an alternative to the permanent tendencies of museum architecture.
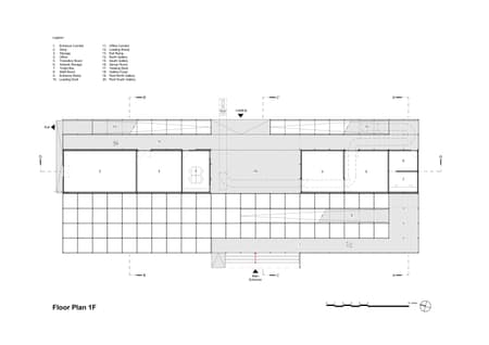
Conceived as an embodiment of speed and motion, the building centers on the Speed Box—an elongated, vibrantly patterned volume that captures the dynamism of MotoGP culture. Elevated above the ground to evoke a floating, accelerated presence, this form is split into two parallel gallery boxes, generating a central void that becomes the museum’s primary foyer and social spine. Beneath the suspended masses, a grounded layer accommodates commercial and supporting functions. Together with elevated walkways, gathering terraces, and viewing platforms, the gallery operates as an immersive environment where visitors can experience and celebrate the evolving spirit, history, and future of MotoGP in Mandalika.
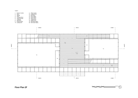
The building is organized into two stacked levels with a clear sense of purpose and flow. The ground floor houses retail, office, and storage spaces — while the upper floor contains two gallery boxes connected by open foyers and viewing decks. Elongated ramps on the east and west façades provide a fluid connection between levels, ensuring an inclusive connection between levels.
The South Gallery acts as a flexible event space for exhibitions, launches, or community programs. Facing it, the North Gallery celebrates Indonesia’s growing motorsport culture as the nation’s first official Mandalika MotoGP™ Gallery, displaying memorabilia and installations that map the sport’s global culture in local context.
The façade embodies motion through material. Prefabricated polycarbonate panels — translucent and lightly tinted — are composed in horizontal rhythms that evoke the blur of a passing bike. During the day, sunlight filters through, scattering vibrant refractions across the interiors; by night, the building glows from within like an idling engine, its activity softly visible through the outer skin. This interplay of opacity and luminosity creates a visual dynamic, that embodies the essence of performance — the interplay of light, material, and motion that resonates with the adrenaline of MotoGP™
This project exemplifies how modular construction and prefabrication can produce architecture that is both efficient and expressive. Its scaffolding framework and panelized envelope reduce waste and on-site labor while allowing future relocation, expansion, or reconfiguration — key principles for sustainable design in fast-paced event environments.






























