The project is located in La Vicentina, a traditional middle-class neighborhood in Quito, Ecuador. The lot's location on a staircase makes parking impossible; however, far from being a disadvantage, this aligns with the owner's lifestyle, as he is a frequent bicycle user. Furthermore, the hillside topography offers the opportunity to capitalize on views towards Cerro Auqui. Coupled with these conditions are the client's needs: a home for personal use, a smaller one for his daughter, and a versatile common space that can function as a workshop or social area.
The house is the personal project of Freddy Ordóñez, a Mechanical Engineer, university professor, and director of the SCINERGY research group at the National Polytechnic School. The project demonstrates the feasibility of building a resilient home in an urban area, with strategies that can be replicated in equatorial regions. The house has become an integral part of his research; equipped with sensors, it generates data that the group analyzes to verify its proper functioning.
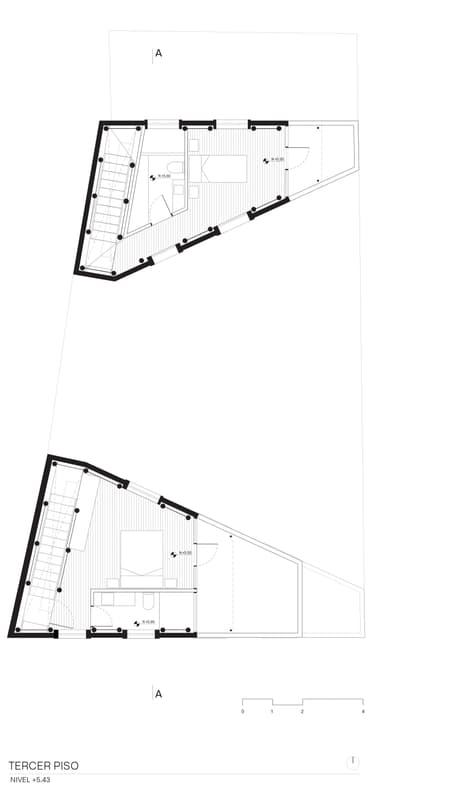
The project's form prioritizes verticality to free up space on the ground floor. This creates two slender volumes that maximize the courtyard area. This compaction strategy results in a central patio that seamlessly merges with the neighboring yard, incorporating the existing jacaranda tree. The patio's trapezoidal shape optimizes solar gain by narrowing the east end and widening the west end.
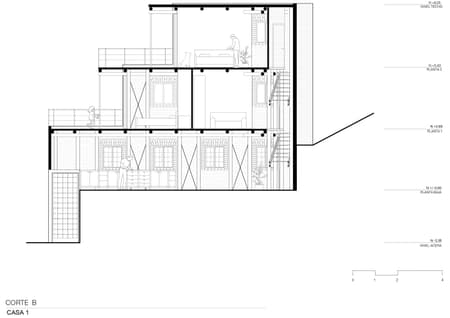
The narrowness of the floor plans assigns a primary function to each level: the social area on the ground floor, a bedroom and a study on the first floor, and another bedroom on the second. The progressive reduction of the required area on each level allows for the retraction of the upper floors, creating east-facing terraces. These terraces open up to the views, capture solar radiation, connect with the neighborhood, and strengthen the relationship with the outdoors.
The absence of a perimeter wall between the street and the house, along with the windows' orientation towards the public space, is no coincidence. These design decisions generate spontaneous community surveillance, where increased visibility deters criminal acts and, at the same time, promotes social interaction and strengthens the sense of community. Thus, the architecture not only fulfills the client's need to connect with his neighborhood but also becomes an active tool for building neighborliness.
The presence of eucalyptus trees in Quito's landscape is a stark reminder of past decisions and their long-term consequences. Introduced in Ecuador in 1865 during Gabriel García Moreno's government, eucalyptus was promoted as a fast-growing resource for construction and forestry. However, its invasive nature has generated negative effects on the Andean ecosystem: eucalyptus forests rapidly expanded, preventing the growth of local species and eroding the soil.
In this project, the columns are made of pingos (round eucalyptus timber) 9 meters long, which didn't pose a complex technical requirement. The pingos were sourced from a nearby forest, just 12.3 km from the construction site, where the owner is replacing eucalyptus trees with native species, thus restoring ecological balance. Furthermore, this proximity to the forest allows for complete control over the process and traceability of materials, aspects often complex in conventional construction.
Building with pingos offers remarkable efficiency because it eliminates the need for wood processing and transformation. Using the log in its natural state maximizes material utilization, reducing energy consumption and waste generated in industrialization, where the goal is to obtain orthogonal pieces of standard sizes. As a result, choosing pingos for the structure significantly reduces both embodied and operational carbon emissions.
Wood needs protection. Brick was chosen for this purpose due to its resistance to weather and because it offers something fundamental to the project: the ability to capture, store, and gradually release heat. The brick skin is separated from the irregular round timber to facilitate construction.
The combination of brick and wood in a seismic zone like Quito presented structural challenges. A 14cm brick wall can't bear three stories on its own. In this project, a collaboration between both systems was sought: the skeleton is resolved with pingos while the brick provides rigidity.
Handmade bricks were chosen, sourced from family-owned brickyards. This decision wasn't due to a lack of access to industrial bricks, but rather a desire to support small local producers.
The house functions as an open laboratory for research. Its design prioritizes passive thermal comfort through strategies like solar orientation, cross-ventilation, thermal mass, and insulation in roofs and floors. This achieves 72% of indoor thermal comfort hours, in a city where homes rarely exceed 40% of annual comfort hours. Additionally, the house reaches net-zero electricity balance thanks to a photovoltaic system, the use of a heat pump for water heating, and reduced electricity consumption. Likewise, water consumption is cut by 40% through rainwater harvesting and greywater treatment. Finally, the choice of eucalyptus wood for the structure, floor slabs, and roof, along with artisanal brick for the masonry, reduces embodied carbon by 80% compared to conventional construction, according to ongoing studies.
The house's central courtyard is designed as an infiltration space, contributing to the recharge of the city's aquifers. Every action counts, especially considering that water sources are increasingly distant and urban areas suffer more from water provision challenges. If, instead of solely relying on large infrastructures to address climate change in cities, projects with small, replicable actions are promoted, the solution doesn't rest solely on massive state investments. On the contrary, the sum of individual actions can reduce dependence on large-scale infrastructures, demonstrating how the micro can influence the macro.












































