A wood rowhouse in Brooklyn is re-imagined for a British family, drawing from New York and London architecture to create large open spaces, generous daylighting, and outdoor rooms with abundant greenery while protecting the house from future storm-surge flooding. Using ingredients from Greenpoint’s historical wood framed townhouses – wood cladding, masonry base, stoop, double hung windows with flower boxes – “Stick House, Brick Garden” re-shuffles elements of its context while focusing on resilience.
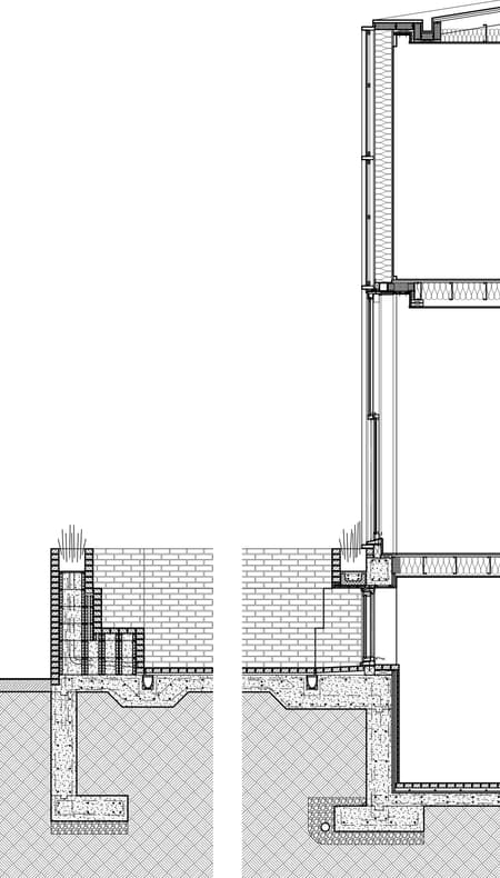
At street level the house’s masonry base peels off from the façade, creating a low-walled garden in line with the neighboring areaways. In the spirit of the historical stoop, terraced brickwork for hanging out makes for a welcoming social garden-room at the sidewalk’s edge. Planters integrated into the terracing form flowerbeds at window height and provide space for growing vegetables. The brick paving extends into the house’s entry, down to the lower level, and back out again into the rear yard where another terraced outdoor room opens to a lush English garden beyond. Located near the East River, mixing the use of resilient materials at grade with generous permeable planted areas was vital to the design, as were technical details such as lifted electrical locations, an elevated yard, and drainage slots integrated into the brickwork.
Planned to support shifting family needs and structures over time, the house has spaces for collectivity and for individual use. The first floor is conceived of as one large room, spanning its length front to back, centering the house’s social activities; smaller rooms are used for sleeping or as workspaces. At the garden level, another large room designed for lounging and listening to music spills out into the rear terrace.
The clients’ love of divided-lite windows, typical of historic New York townhouses, informed the design of the façade. Ten-foot tall double hung windows, which span floor to ceiling, establish an overall gridded organization of cedar panels and battens, which is then echoed in the painted interior trim. The front of the house, which places windows corner-to-corner, is structured as a wood curtain wall, offset from the intermediate floorplate. At the house’s center, natural light enters through the roof: the ceiling over the entirety of the stair hall is composed of a series of white glass panels, which filter light from four large skylights above. At night, LED lighting above the glass mimics natural / atmospheric light to illuminate the stairs below.
Standard 2x lumber is used throughout to create the grid of the façade, interior baseboards, crowns, corner boards, and to frame millwork. In the interior, the wood trim acts as a framework for supporting the clients’ collections and artworks, including reclaimed architectural components. “The house and garden are simultaneously lush and generous while defined by an economy of means in form and material—the simple geometries of the design allow for the Owners’ talents in the garden and personal belongings to define the experience of living,” says ABA partner Emily Abruzzo.






















































