Brooklyn, NY, USA – The Lefferts Manor section of the Prospect Lefferts Gardens Historic District in Brooklyn is a remarkably well-preserved series of historic houses from the late 19th- to early 20th-century: stately and large enough for families, the interiors can pose challenges to contemporary living, with outdated building systems, a lack of storage, and dark, divided spaces.
New owners of a corner house—a couple with backgrounds in marketing and journalism, raising two children—came to ABA for something “clean, bright, natural, highly purposeful/functional, and kid friendly.” While the exterior of the building is protected by landmark status, ABA approached the interiors not as restoration, but as reinvention. Looking to retain character while minimizing complexity, ABA suggested unifying spaces and bringing calm and simplicity by using as few ingredients possible, consistently throughout. In doing so, the design process simultaneously references the house’s historic form, borrows from early modernists like Adolph Loos in material usage, and unapologetically eliminates detail.
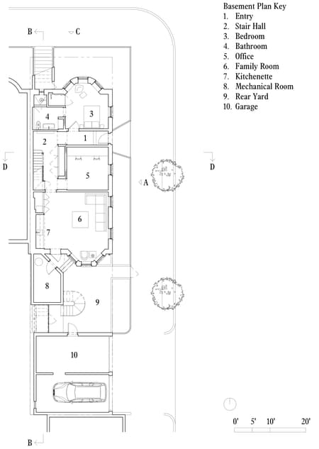
Mixing prefabricated, custom, and off-the-shelf techniques, the architecture focuses on lightening the overall feeling; making the house less formal. The materials are few but consistent: white oak cabinetry and paneling flow from room to room, grounding the interiors in a refined, yet pared-down warmth. Existing wood floors were refinished to match the paneling in tone, and terrazzo was used in areas of higher traffic. Elsewhere, the palette was kept uniform: white painted woodwork and cast plaster establish a quiet architectural language. Previously divided spaces were opened for larger, more fluid living areas, and the basement was configured as an informal in-law suite with its own entrance, offering the possibility of muti generational living. Circulation was streamlined, with generous storage added off of hallways and within rooms.
At the entry, a previously tight, outdated, thickly painted vestibule with too-shallow closets was replaced with a wood-clad volume housing coat and shoe storage and a powder room—the latter lined in paneling to create a compact, ship-like space. The parlor-level public rooms are framed as a sequence of related spaces separated by cased openings in wood matching the paneling, creating charged thresholds heightening the passage from one space to another. Acting as a sort of interior liner, or wainscoting, the paneling connects rooms, eventually guiding inhabitants up the staircase to the living spaces above. Rendered as a low picture rail in the refined, but casual living room, in the kitchen the paneling becomes wall to-wall white oak millwork concealing storage. Veined quartzite countertops and handmade tile backsplash add texture and scale, and a long dining table shifts the kitchen from task space to dining. For the husband, a cocktail and drinks writer, a dedicated corner of the kitchen was carved out for beverage-making.
Between the living and dining spaces is an intimate seating area centered around a restored fireplace with new handmade tile surround, flanked by new built-in benches concealing HVAC. A dialog is seen between the deeply sumptuous curvature of the new 16” deep cornice and paneling which wraps the perimeter of each room: the minimally detailed light wainscoting replaces the once-heavy woodwork, while the soft ceiling curves reinterpret shallow, mismatched cornices previously in place. A re-imagining of the historical condition, represented in a sort of low resolution, ornamentation without detail. The contemporary ceiling profiles were locally fabricated in glass fiber reinforced gypsum, allowing for streamlined construction that then merges with plaster-craft on site, resulting in a blurring of the line between wall and ceiling.
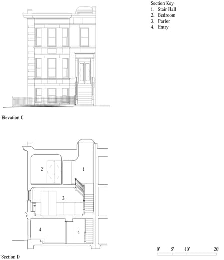
The wainscoting, which shifts height in response to window placement, continues into the restored stair hall, where it curves gently upward toward a sky lit landing, catching and shaping daylight as the staircase opens above. The typical ceiling cove form is dramatically inverted as the plane of the ceiling peels back and bends upward to the large skylight. The ceiling and roof above the stair were completely removed for the new, industrial-scale skylight, which brings daylight down through the center of the house all the way to the basement level—now integrated into the home’s spatial sequence with the removal of a wall that had once enclosed the stair hall. The existing ornamental woodwork of the staircase, which was replicated where there was once a wall, is rendered in white paint matching the walls and ceilings (which are one in the same for soft effect), using color and finish to unify disparate design elements of the historical with the contemporary.
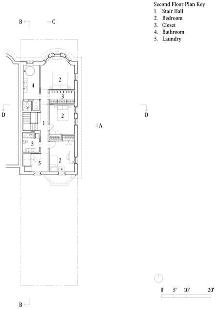
On the second floor, bedrooms and bathrooms continue the material language, in a slightly simplified form. The wife had lived in Japan, an experience that helped shape the design of the bathrooms, which take cues from Japanese bathing culture. In the primary bath, an ofuro-sized soaking tub sits beneath a tall window, surrounded by luminous tile; a skylight above evokes the experience of an outdoor shower. The bedrooms are pared-back but warm, defined by form, light, and subtle material transitions: here, the wood paneling datum drops down to baseboard height. Where the ceilings are lower in the second floor bedrooms, the curved ceilings create a cocoon-like sanctuary.
The project also included a comprehensive energy upgrade: eliminating gas fixtures in favor of full electrification—offset by new solar panels—removing radiators and replacing them with efficient heat-pump conditioned air, upgrading windows and insulation, and converting all lighting and appliances to reduce energy use. Bringing in abundant daylight further minimized the need for electric lighting.






































