Rigshospitalet North Wing features more than 200 patient rooms, operating rooms, an intensive care unit, and outpatient clinics. The guiding principles of the design are patient well-being and healing, the needs of healthcare professionals, and the future adaptability of the hospital functions. The new North Wing extension to Rigshospitalet aims to encourage the recovery of each patient while optimising the efficiency and functionality of the hospital staff.
The new wing is spread out over seven floors and offers a total of 209 patient rooms (196 are single rooms with private bathrooms), 33 operating rooms, an intensive care unit, outpatient clinics, diagnostic imaging functions, and research spaces. The design and layout of the North Wing are the results of a close collaboration between LINK arkitektur and 3XN, as well as the engineering firm Sweco. Additional contributors to the project include the landscape architect Kristine Jensen Tegnestue, and the German architect firm Nickl & Partner.
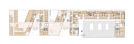
Optimising the flow within the hospital. Inspired by the lines on a cardiogram graph, the North Wing is shaped like a zigzag and is intersected by a main ‘artery’ route that runs through the entire wing. The straight, central walkway allows staff to navigate easily from one end of the building to the other, while the surrounding zigzag structure means quiet zones and patient rooms are located away from the central corridor, avoiding unnecessary disturbances. The zigzag form thus serves numerous purposes: it eases the flow through the hospital by optimising the staff’s circulation routes while offering patients more comfort and dignity to recover away from the busy hospital environment.
Clear and easy navigation. Wards and outpatient clinics are laid out over three floors and are connected by a continuous axis. Arrival areas are optimised for day patients, while the pre- and postoperative areas are placed next to the operating areas. Two spiral staircases and four central elevator towers connect the floors to the central common area. The staircases are located in the open atria, where daylight flows into the building from the glass ceiling, as well as through large glass sections in the façade. Common waiting areas are established in connection to the two staircases on each floor. To help orientation, each floor has its own dedicated colour scheme applied to doors, flooring, and selected walls. Artworks by Olafur Eliasson, Malene Landgreen, and Erik A. Frandsen bring colour and life into the building, softening the traditionally sterile hospital environment. The artworks exhibited in the atria are strategically placed to be enjoyed by as many people as possible, including passing pedestrians from outside.
A bright and beautiful building. Healing architecture has been a guiding principle at all levels of the North Wing. The large glass windows let the daylight flow into the building and create a connection between the interior spaces and the neighbouring public park Fælledparken. The daylight-filled space inside the North Wing and the green surroundings help create a peaceful environment for patients and relatives. The result is a hospital building that is pleasant to visit while providing the patients with optimal conditions for recovery and well-being. The characteristic zigzag design of the North Wing helps to harness natural daylight and save energy as artificial lighting is minimised. Natural light stone was chosen for the façade to give it a bright and welcoming appearance. Facets in the façade add a form of shade as well giving the building’s exterior a more vibrant expression that changes throughout the day and from different angles.
Part of the city – but one of a kind. The North Wing relates to its surroundings while still asserting its own unique architectural expression. The dynamic form of the North Wing adapts to the surrounding urban space, gradually lowering in scale from north-west to south-east. This means the building is taller towards the high-rise buildings of the existing hospital, while respectfully lowering down towards the classic Copenhagen-style residential buildings across the road. The façade towards Fælledparken is light and open and enters a dialogue with the park rather than forming a solid wall.
Ready for today and ready for the future. The North Wing has a strong expression, conveying openness, transparency, safety and humanism – while at the same time creating a long-lasting, flexible hospital that can adapt according to future operational needs. New treatment methods and digital innovations continue to challenge existing hospital settings. The North Wing is therefore designed around simple principles that provide great flexibility and space for adjustments according to future needs.























