To gather both students and staff, needed Mälardalen University a new central campus building in the city of Eskilstuna. The new campus's main goal is to create a feeling of belonging between students and staff and to become a strong symbol for knowledge in the city. Effectivity and shared use were introduced in the disposition of the spaces. AIX helped the University with the interior design of the building.
The building was designed by Danish architects 3XN. The proposal was a spectacular building that incorporated a swimming hall located right down by Eskilstuna river, designed by Paul Hedqvist in 1933. Eskilstuna is an old industrial city with many characteristic brick buildings. Brick and water. Keywords such as warmth, variety, and human-scale were the common thread through the design.
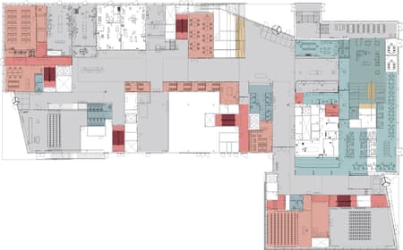
In terms of color, the concept has been based on the industrial façade of the industrial city, from the darkest iron oxide red to the lightest pale pink in the new areas. Water and blue tones have been a theme for the transformed swimming hall. Together with the University, AIX adapted the floor plan for the new ideas that were raised along the way. The university's management was interested in new forms of teaching and working methods as an activity-based workplace, in line to keep the staff together across academic boundaries. AIX supported the University with workshops, both in terms of office environments and teaching methods. Campus Eskilstuna is a workplace for 290 people.
The workplace must encourage transparency and creativity where there is room for teamwork and individually concentrated work. The learning areas have been designed based on the latest research regarding learning. A large variety of educational spaces have been created, from large auditoriums to classrooms. There are also rooms design for special functions such as studios, workshops, classrooms with hospital equipment. Public areas and informal study places are crucial for the students' well-being as well as for the study results. Great emphasis has been set on the design of study areas such as rooms for teamwork, open meeting and study places, libraries, and lunchrooms for students.
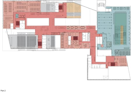
A common meeting place has been on the border between the parts where students move freely and the part of the building that belongs to the staff. Here, students and university staff can meet outside scheduled teaching time. The library in two floors is in the former swimming hall. On the entrance level, there is a library for publications, a place for exhibitions as well as study places and rooms for teamwork.
The two floors are connected by an auditorium with reading places and workplaces for teams in the part that was previously the pool. The library's bookcases are on the upper floor. There are also study places and a quiet study room here. The result has been an inspiring and modern university environment where students, administration, teachers, and researchers can interact and develop.
























