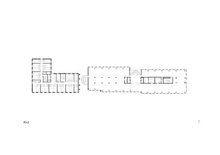
In a single 16,000 sq m structure, the building combines a mixed program open to the city. Within the office building and hotel, collaborative spaces and a wide range of food options are available to users, while food venues open to the public participate in the animation of the street and the neighborhood on the ground floor.
The project’s two programmatic elements, a hotel, and an office building are separated but adjoined along their east-west axis. Where Hôtel OKKO, clad in semi-reflective aluminum panels, remains an unbroken mass, the InDéfense office building is split and shifted into smaller masses, each pushed in or extruded to open the long and narrow site to its surroundings and add depth to the façade.
A sheltered agora, used as a bike parking at the ground level, links the two buildings and is punctuated by a spiral stair. A mural, visible from the street, will be installed on the side wall of that space aiming to encourage curiosity and bring art to the city.
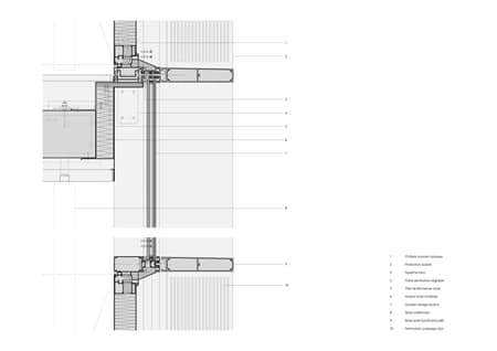
Distinctive Façades. Together, the façade’s angled and tinted aluminum cassettes give it a nearly lenticular quality, appearing glassily transparent or colorfully metallic depending on the viewer’s perspective, the time of day, and even the season. Within the context, the reflective façade of the Hôtel OKKO stands out of the context and gives the program its own identity, while the distinctive bronze-tinted façade of the InDéfense building brings warmth and atmosphere to the neighborhood.
Stairs connect more than floors. The building is organized around an interior spiral staircase set within an atrium adjacent to the full-glazed north façade. Those stairs are designed to encourage interaction, communication, and knowledge sharing among colleagues sitting across the building’s floors. The staircase, which alights on each level adjacent to the elevator lobby, requires passing through the floor’s shared landing – facilitating opportunities for interaction between colleagues separated across the floors.
Social spaces are scattered throughout the building, in indoor terraces within the atrium and outdoor terraces that crown the building’s extruded exterior volumes. Select exterior terraces are connected vertically by another outdoor spiral staircase that allows visitors to climb up to the rooftop and enjoy panoramic views over La Défense and out to Paris.
The façades of the office building are designed with openings for ventilation cuts integrated within the opaque cassettes (through a perforated side panel) to offer a “clean” design made of solid panels and large glass panels with no visible frames. The checkerboard composition of the façade contributes to thermal regulation and creates a light and shadow effect in the workspaces, enhanced by the « Californian » blinds, which allow users to adjust the occultation and are reminiscent of the facades’ architectural style.
Between the boulevard de La Défense and the railway, the structure and the façades of the buildings are designed with a high level of performance in terms of vibrations and acoustic performance.
The façade of the InDéfense building is a dynamic play of push and pull, the extruded/ receding volumes creating shaded overhangs or generous daylit terraces. These planted outdoor spaces, in addition to providing spatial variety, incorporate both contextual and perceptual biophilic attributes – attributes proven to have positive effects on workplace productivity and wellness. The terraces distributed over different levels, the interior stairwell and its galleries as well as the two exterior staircases make InDéfense a lively building, opening up to the city, which allows everyone to see the effervescence created by its users.
Hôtel OKKO. Located on the western portion of the site, Hôtel OKKO houses 184 rooms over nine floors. On the ground floor, a restaurant is accessible to hotel customers, the neighborhood, and to employees from the surrounding offices to create an active and busy streetscape. The first floor is occupied with shared amenities, among other things a 300 sq m lounge and a dedicated terrace for hotel visitors that they can use anytime during their stay. The interior of the hotel was designed by Studio Catoir.
































